Objekat
STARA VAROŠ
Nešto novo u Staroj varoši



Kompanija MHG Dadi iz Podgorice privodi kraju radove na izgradnji stambenog objekta u Staroj Varoši.
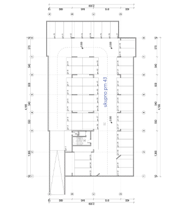
Spratnost objekta je Po+P+3, a u podrumskoj etaži predviđena su garažna mjesta. Ukupan broj stambenih jedinica biće 43, isto toliko i garažnih mjesta.
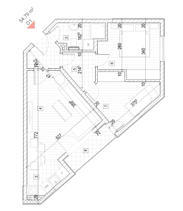
Dostupni su stanovi različitih struktura: garsonjere, jednosobni, dvosobni i trosobni, sa pratećim sadržajem-stepenište i lift.
Planirano je uređenje okolnih površina, izgradnja trotoara i travnate površine.
Prostor je prilagođen potrebama korisnika i projektovan u skladu sa standardima.
Materijali u objektu STARA VAROŠ
Najbolji materijali za Vašu udobnost

gotovi podovi
Gotov parket je ekološki proizvod koji doprinosi očuvanju ograničenih prirodnih resursa.
Ono po čemu se ističe jeste brza ugradnja. Može se upotrebljivati odmah nakon ugradnje, izdržljiv je i ima dug vijek trajanja.
Otporan je na temperaturne razlike, pa je zbog te svoje osobine pogodan za podno grijanje.

Sobna vrata
Vratno krilo je drvena konstrukcija ispunjena oblogama od MDF-a 4mm, obloženo CPLP folijom. Ukupna debljina krila je 42mm. Folija je 3D raljefna, otporna na grebanje.
Štok je izdrađen od MDF 40mm ravnog oblika obložen CPLP folijom. Lajsne su od medijapana obložene CPLP folijo.
Vrata su opremljena sa tri inox brodske šarke, bravom AGB 8 ključno zaključavanje i kvakom Hoppe Milano.

Bravarija
Sistem profila S 8000 predstavlja dosljednu tržišnu orjentaciju GELANA-a. Prilikom razvijanja sistema sa 74mm ugradne dubine u centru pažnje bila je ekonomičnost i optimizacija materijala za jednostavnu i ekonomičnu proizvodnju gotovih elemenata.
Osnovne karakteristike:
-74mm ugradne dubine za odličnu toplotnu i zvučnu izolaciju.
-Optimizovana geometrija profila koja štedi resurse i čuva prirodnu okolinu.
- Jednako ojačanje za krilo, okvir i prečku.
-Poboljšana klima prostorije i doživljaj stanovanja uz patentirani sistem provjetravanja GECCO za optimalnu razmjenu vazduha.


0
Stambene jedinice
Stanovi
Neka Vaš novi dom bude u srcu podgorica
Dostupne su 43 stanbene jedinice različitih struktura: garsonjere, jednosobni, dvosobni i trosobni.


0
Garažna mjesta
Garaža
43 Garažna mjesta
U podrumskoj etaži objekta predviđena su garažna mjesta.
Vrhunska lokacija
Objekat se nalazi u srcu stare Podgorica, poznate kao Stara varoš, na svega 700m od centralnog trga.




